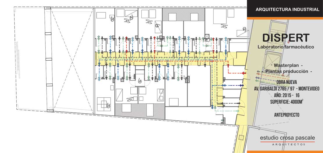
Breve descripción del proyecto:

Se realizó un extenso y pormenorizado estudio de las instalaciones actuales del Laboratorio, para mejorar el funcionamiento y cumplimiento de la Normativa GMP y municipal de todos los sectores.
El resultado es un "Masterplan" general y Anteproyectos por áreas de producción (ej.: sólidos, veterinario, etc.) teniendo en cuenta no solamente el funcionamiento interno de cada uno de ellos, sino la interrelación entre los mismos, dentro de una planta industrial existente y con limitaciones para su crecimiento en superficie y altura.