Breve descripción del proyecto:

Primera intervención integral dentro del predio de Prondil S.A. (en el sector de expansión hacia la calle Osvaldo Cruz).
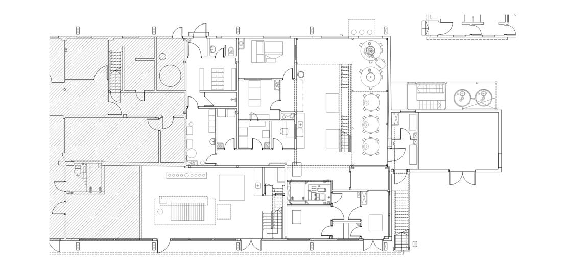
El plan general de la obra se compone de varios sectores:
Un edificio destinado a Laboratorio de control de Control de Calidad (que con pequeñas reformas realizadas en 2014, continúa funcionando allí).
Un edificio destinado a Produccción y vestuarios, con un espacio para futuro crecimiento. Allí se realizó en 2008 una reforma para ubicar un sector de Producción (en 2 niveles).
El traslado y mejora de los Bioterios.
Un edificio exento, destinado a Comedor.
La continuación de la calle interna de circulación central, llegando hasta el portón de acceso por Osvaldo Cruz, y acondicionamiento de espacios exteriores.